THE FOLLOWING IS A CITY OF DANVILLE RELEASE
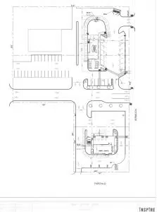
Danville, March 31, 2023 – The City of Danville is pleased to announce that we have received a proposal from Subwars, LLC for the development of a Sonic Drive-In and separate Jimmy John’s on the northwest corner of Fairchild and Vermilion Streets.
Both restaurants would be just over 1,200 ft2 with drive-thrus and outdoor patio seating. Total estimated construction costs are between $2-4 Million with anticipated annual sales to exceed $2 Million. This would yield approximately $14,000-$28,000/year in property taxes for the City (and much more for the other taxing bodies); as well as roughly $20,000/year in additional food and beverage taxes; and $55,000/year in sales tax revenue. It would also create dozens of new jobs.

Construction would commence as soon as designs are approved by the Engineering Division and permits are issued by the State of Illinois and the Public Works Department. “We’re thrilled to see this potential new development at one of the busiest intersections in Vermilion County! I think folks will be especially excited about the Sonic as the nearest one is 45 minutes away,” said Mayor Williams.








